厨房设计与安装

公司拥有一批高素质的管理人才,特聘请了行业高水平的专业技师(由燃气、水、电、机械、环保、电子等中高级工程师)和行业资深设计师等组成一个过硬的精英团队。

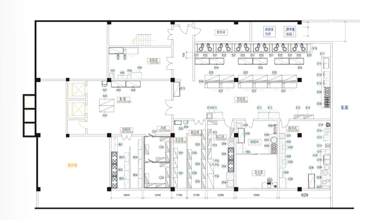
专业商用厨房 设计

定制商用厨房设备设计 适用于食品餐饮服务行业

盛德厨具是商业厨房设计和厨具设备安装方面的专家,为各种规模的餐饮服务企业提供服务。我们帮助您为您的企业创造完美的厨房。无论您的行业或预算如何,我们都会与您合作,定制您的厨房设备,以满足您的个性化需求。

厨房设计流程

任何商业厨房设计的第一步都是从初步咨询开始的。我们的技术设计师希望了解您对项目的愿景以及任何具体要求和细微差别。接下来,您将被引导完成设计过程,评估场地限制、厨房流程、空间和存储空间。

餐饮厨房流程和布局

在任何商业环境中,包括您的厨房,最大的生产力都是必不可少的。我们通过优化您的餐饮服务布局和平面图来帮助您节省关键的烹饪和服务时间,以实现最大产量。我们考虑您餐饮服务流程的每一步,包括:

专业商用厨房安装

我们的专业厨房与广泛的商业客户合作。从酒吧和餐厅厨房,到学校和养老院,企业单位厨房,酒店厨房,大型工厂厨房,连锁餐饮厨房,儿童乐园厨房我们的团队随时为您提供帮助。每个安装项目都是独一无二的,这就是为什么我们对每个安装都采取量身定制的方法。我们照顾各个方面,从餐饮设备到制造。我们的目标是使您的新厨房安装或改造翻新尽可能简单明了,使用顺畅,安全,节能,高效率。 

餐饮设备制造

如果您正在寻找符合您规格的产品,我们可以设计、制造和供应您的所有配件和固定装置。从钢架和高规格服务器台面,到桌子和台面,我们的工程师可以提供帮助。

我们只使用优质不锈钢,确保您的产品具有卓越的光洁度。我们的制造服务提供专门针对您的需求设计的定制设备或模块化产品。 

商用厨房安装

联系我们获取你的专属方案

每个项目都从最初的对话开始。 我们的团队成员会在24小时之内给你答复